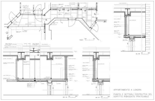
Un appartamento a Londra

Descrizione: 
ristrutturazione di un appartamento di civile abitazione
Scheda tecnica: 

Progettista: arch. Danilo Guerri, arch. Valeria Manzini dello studio V+Vinterni
Progetto strutturale: Fiedler Associates, Londra
Collaboratori: Albero Dal Mas, Francesca Dottori, Nicola Guerri, Giulia Mosci
Committenti: Giancarlo ed Anh Saronne
Imprese esecutrici:
Opere edili: JJ Home Improvements, Londra
Impianto audio-video: CIC (Complete Installation Company), Londra
Opere in legno: fratelli Mentrasti, Falconara M.ma (AN) Gorizza s.r.l., Roma Mietek & Tomek Wierzbowski, Londra
Imprese fornitrici: Brocanelli s.r.l., Serra de’ Conti, (AN)

Località: 
Londra
Tipologia: 
Residenza unifamiliare
Stato: 
Completato
Cronologia: 
2006 - 2008